Michal Pulman | text vyšiel v magazíne Koncept 1/2022
Piati partneri z Franz&Sue sa prvýkrát stretli počas štúdia architektúry na Technickej univerzite vo Viedni. Založili dva nezávislé architektonické ateliéry Franz a Sue. Pri spoločných diskusiách zistili, že majú nielen rovnaký architektonický prístup, ale aj hovoria spoločným jazykom v kultúre ich spoločností a v ich záväzku budovať stavebnú kultúru. V roku 2017 sa dva ateliéry zlúčili. Odvtedy Franz&Sue neustále rastie. Dnes má tím viac ako 90 ľudí z 18 krajín, pôsobí ako jedna z najúspešnejších a najinovatívnejších architektonických kancelárií v Rakúsku. Ich architektúra je jasná, výrazovo redukovaná a vysokokvalitná.
Spolu sme silnejší a žijeme bezstarostnejšie – s týmto presvedčením založili v roku 2008 „Fighz Club“. Mesačník, v ktorom ich kolegovia z branže otvorene a intenzívne diskutujú o aktuálnych architektonických projektoch. Začiatkom roka 2015 sa objavila túžba po spoločnej kancelárskej budove, kde by mohli pracovať, vymieňať si poznatky naprieč firmami a tráviť spolu čas ako kolegovia. Pri hľadaní lokality dostali ponuku od ÖBB, ktoré hľadali nové koncepty pre pozemky pod bývalými železničnými vlečkami. Rozsiahlou rekonštrukciou hlavnej stanice už neboli potrebné pre železničnú infraštruktúru a boli urbanistickou súťažou rozčlenené na stavebné parcely a centrálny park v novej štvrti Sonnwendviertel.
V čisto rezidenčnej štvrti dokázali presvedčiť porotu svojím priekopníckym projektom – je to jediná budova, v ktorej sa pracuje na všetkých typických podlažiach a ktorú vyvinulo, naplánovalo, postavilo a zafinancovalo ako kancelársku budovu spoločenstvo koncových užívateľov. Objekt je riešený ako oceľobetónový skelet s prefabrikovanou sendvičovou fasádou s priznaným rastrom nápadne pripomínajúcim panelové domy minulého režimu.
Michal Pulman sa rozprával s jedným z partnerov ateliéru Franz&Sue Christianom Ambosom o budove, kontexte a budúcnosti stavebného priemyslu.
Je panelová výstavba v Rakúsku vnímaná pozitívne?
Neviem, ako na Slovensku, ale v Rakúsku je vnímaná negatívne, hlavne pre asociácie so sociálne prežitými systémami. Keď tieto budovy začali vznikať, znamenali určitý spoločenský pokrok, aj keď boli na rozdiel od vtedajšieho Československa primárne určené pre nízkopríjmové skupiny obyvateľstva. Často sa stávalo, že chýbala občianska vybavenosť ako knižnice či školy, z toho pramenilo viacero sociálnych problémov, čo malo za následok, že tieto štvrte neboli medzi obyvateľmi veľmi obľúbené. K tomu sa pridali technické problémy spojené s panelovou konštrukciou, ktoré verejnú mienku panelovej výstavby – „zlého“ betónu – ešte viac zhoršovali. A, samozrejme, asociácia, ktorá sa vytvorila v Rakúsku, ale najmä v Nemecku (NDR), kde bývali všetky sociálne vrstvy, je synonymom aj pre bývalé stredoeurópske komunistické štáty. Tieto všetky dôvody ovplyvnili obraz/mienku o panelovej výstavbe a preniesli sa na konštrukciu ako takú.


Takže tento problém, ktorý bol z veľkej časti aj sociálny, sa vo verejnej mienke zameral na betón, panel a v konečnom dôsledku na panelovú výstavbu.
Áno, problém ako taký sa netýkal materiálu ani druhu konštrukčného systému, ale chýbajúcej infraštruktúry, monotónneho urbanizmu, zdivočených verejných priestorov, ktoré si nikto nechcel osvojiť/ adoptovať, nikto sa za ne necítil zodpovedný, čo situáciu ešte viac polarizovalo a polarizuje dodnes.
Aké vnímate pozitíva a negatíva na prefabrikovaných fasádnych paneloch? Bola fasádna repetitívnosť na novostavbe zámerne použitá ako odkaz na panelové stavby zo 70. a 80. rokov?
Samozrejme, pozorujem podobnosť s panelovou výstavbou, ktorých verejná mienka nie je príliš vysoká, ale ako architekt sa snažím vnímať hlavne jej pozitíva ako rýchlosť výstavby, trvácne povrchové materiály, presnosť pri projektovaní atď. To boli aj pre nás východiskové body, ktorými sme chceli panelovú prefabrikáciu posunúť na modernú úroveň. Pri Stadtelefantovi bolo preto dôležité vytvoriť fasádu, ktorá má výhody klasickej a zároveň prefabrikovanej, tzv. rýchlej výstavby.
Do prvého kola architektonickej súťaže sme vstúpili s maximálne otvorenou zasklenou fasádou. Následne sme si pri prepracovaní návrhu kládli otázku, či tam vnútri chceme naozaj pracovať a fungovať?
Prečo názov Stadtelefant (Mestský slon)?
Z hľadiska výšky sme jednou z najvyšších budov v novej štvrti, mali sme v hlave predstavu slona ako veľmi spoločenského zvieraťa a zároveň nám finálna povrchová úprava fasády pripomína jeho kožu. Ako vyzeral návrh, ktorý ste prezentovali porote v súťaži? Je zaujímavé, že do prvého kola architektonickej súťaže sme vstúpili s maximálne otvorenou zasklenou fasádou. Následne sme si pri prepracovaní návrhu kládli otázku, či tam vnútri chceme naozaj pracovať a fungovať? Či v lete, keď bude38 °C, nebudeme mať problémy s prehrievaním.
To znamená, že pre porotu nebolo prvoradé ako budova vyzerá, ale čo je jej náplňou.
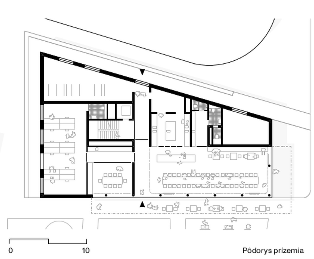
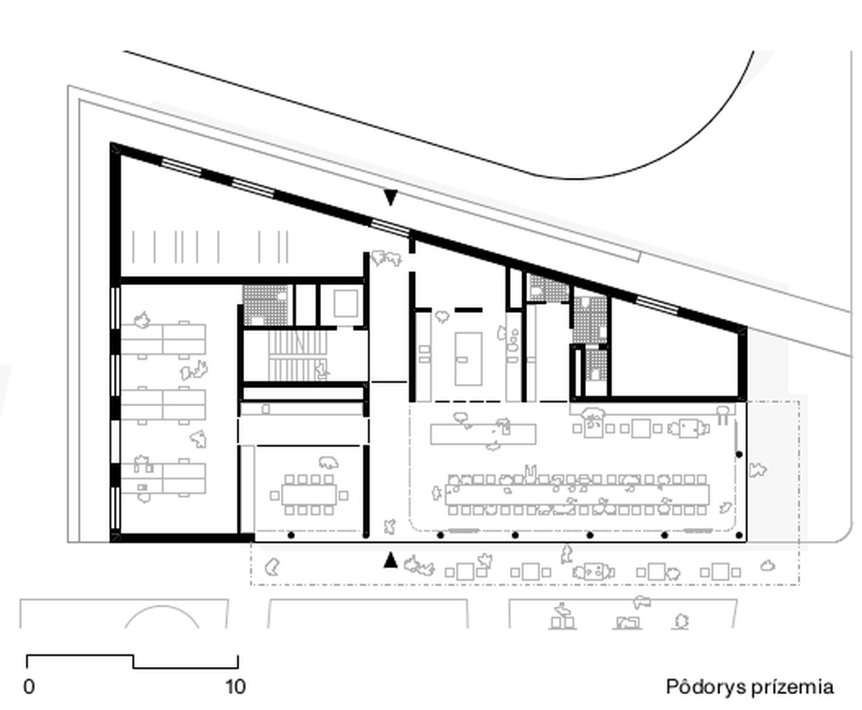
Išlo v prvom rade o koncept užívania budovy, oživenie parteru. Vytvorili sme skupinu rôznych firiem, ateliérov a inštitúcií, ktoré sme zjednotili a ponúkli alternatívu k prevládajúcej obytnej funkcii v rámci novovznikajúcej štvrte. Porotu sme presvedčili, že v budove, kde pracuje 120 zamestnancov, vieme reštauráciu/kantínu/spoločenský priestor cez pracovný týždeň natoľko vyťažiť, že dokáže ekonomicky prežiť aj počas zvyšných dní. Pri budovaní nových štvrtí je živý parter vždy problém a tu sa zase dotýkame urbanizmu, ako môžeme v týchto lokalitách etablovať obchody, kancelárie a gastroprevádzky. Porotu sme presvedčili, že je to možné, a v našom prípade sme latku posunuli zase o stupeň vyššie založením podnikateľskej Baugruppe a výstavbou administratívnej budovy.
Nie je štandardné, aby už pri súťaži boli jasní nájomcovia v podstate pre celú budovu.
Nemali sme presne rozdelené plochy, ale dá sa povedať, že 100 % obsadená budova v takej skorej fáze projektu bola z pohľadu poroty veľmi atraktívna.


Aký bol koncept a čo bolo dôležité pri navrhovaní?
Najprv sme si museli uvedomiť, aké sú kvality budovy, v ktorej sme sídlili predtým. Najúspešnejší viedenský dom – tehlová továrenská budova z druhej polovice 19. storočia, ktorej konštrukcia je odolná a trvalo udržateľná, – umožňuje flexibilné využitie priestoru, vďaka vysokej svetlej výške dokáže umiestniť rôzne funkcie a má rastrovú fasádu, ktorá je pre väčšinu Viedenčanov ľahko rozpoznateľná a dobre vyzerá. Dokážeme tieto kvality moderne interpretovať a preniesť aj na našu novú budovu? Proporcia priestorov, svetlá výška, rytmus, raster a veľkosti okien, to boli základné elementy, ktoré sme jednoducho skopírovali. Pri tomto uvažovaní nebola konštrukcia vôbec dôležitá, to bol až druhý krok, kde sme si uvedomili, že tieto veci vieme stavať aj modulárne. Vytvorili sme jednoduchý systém, kde jednotlivé fasádne elementy sú sendvičové panely – vnútorná vrstva je nosná, v jadre je tepelná izolácia a z exteriéru sa nachádza druhá krycia betónová vrstva, ktorá chráni izoláciu. Na stavbe sa potom jednotlivé fasádne elementy staticky prepojili so železobetónovou doskou odlievanou na mieste a nebolo treba dopĺňať dodatočné stĺpy.
Takže vonkajšia betónová vrstva zároveň na stavbe slúžila ako stratené debnenie pre železobetónovú dosku?
Presne tak, vznikol flexibilný pôdorys, ktorý možno pomocou rastrovej fasády ľubovoľne deliť a spájať. Nosný systém tvorí fasáda, schodiskové jadro a jadro pre rozvody a všetko ostatné je teoreticky voľne rozmiestniteľné. Rozhodli sme sa pre vyššiu svetlú výšku, v dôsledku čoho sme možno stratili určitú podlahovú plochu, ale po prepočtoch sme zistili, že to vôbec nie je také zlé. Dôležitejšia pre nás bola flexibilita využitia, to, že tu môžeme umiestniť rôzne funkcie od kancelárií cez výrobu až po bývanie. Takisto sme chceli vnímanie betónu ako podradného materiálu otočiť a ukázať, že betón môže mať aj vysokú povrchovú a vizuálnu kvalitu. Nechceli sme ísť cestou klasického šalovaného betónu, ako ho poznáme, ale cestou ušľachtilého opieskovaného povrchu z obidvoch strán. Z exteriéru bol jemne pieskovaný priamo v továrni, z interiéru sme zvolili pieskovanie hrubším zrnom, čím sa dosiahol vizuálne a hapticky bohatý povrch, ktorý netreba nijako dodatočne upravovať. Vďaka použitiu prefabrikovaných panelov sme počas výstavby nepotrebovali lešenie, po zatvrdnutí prefabrikovaných balkónových dosiek do stropnej dosky bola fasáda hotová. Žiadny maliar, žiadne dodatočné lepenie polystyrénových dosiek.
Tým sa zrejme ušetril čas aj financie na výstavbu.
Samotná prefabrikovaná konštrukcia je oproti konvenčnej, odlievanej drahšia. No pri výstavbe už šetrí financie, nakoniec tak máme za približne rovnaké peniaze omnoho odolnejšiu a kvalitnejšiu fasádu, než by bola klasická omietka.
Sú všetky parapety odlievané z betónu?
Áno, pri vonkajších aj vnútorných parapetoch sme boli odvážni. Jedine z exteriéru sa nachádza krycia lišta, nepodaril sa nám pôvodný plán zabudovať okná do panelov už vo výrobe. Tento plán sa nerealizoval pre zvýšené náklady na prepravu. Aby sme mali istotu dobrého výsledku jednotlivých povrchov, realizáciu sme zverili firme, ktorá v 70. – 80. rokoch stavala panelové domy. Keďže sme súkromný investor, nemuseli sme ísť po najnižšej cene. Čistotu priestorom dodávajú aj skryté rozvody – vykurovanie v podlahe a chladenie v strope.


Aký vplyv mala na budovu covidová pandémia? Je budova schopná reagovať na tieto zmeny, spravili by ste v procese tvorby niečo inak?
S ohľadom na pandémiu by sme možno náš ateliér koncipovali trochu inak. Vytvorili by sme viac miestností, kde sa môžu ľudia utiahnuť, viac flexibilných pracovných miest s charakterom dielne, ale budova sama osebe ako schránka, ako priestor je navrhnutá dostatočne odolne a spravili by sme ju opäť rovnako.
Tu sa dostávame späť ku konceptu otvoreného voľného priestoru, ktorý je na tieto zmeny ideálny.
Povedzme, že umožňuje zmeny, ktoré sa však dejú pomaly, v dlhodobom horizonte. Jednotlivé priestory možno časom prestavať aj na byty, každá časť má na každom podlaží vlastný balkón. Z pohľadu životnosti budovy, a teda aj jej udržateľnosti, ide o veľký benefit, keďže pri prípadnej prestavbe sa nemusia upravovať nosné časti.
Ako vidíte budúcnosť prefabrikácie v stavebníctve?
Prefabrikácia sa dostáva do stredobodu pozornosti. Otázkou je, či betón je ten správny materiál, ja si myslím, že nie. Trend smeruje k hybridným konštrukciám, drevostavbám, no musíme brať do úvahy obmedzenia jednotlivých materiálov, a teda aj ich vhodnosť na rôzne typy stavieb. Z môjho pohľadu je potrebný prevrat, industrializácia stavebného priemyslu, ktorý je momentálne rozdrobený na malé firmy. Je potrebné sa na stavebné systémy pozerať z hľadiska udržateľnosti a efektivity. Možno by sme sa mohli niečo naučiť od automobilového priemyslu, myslieť v systémoch, ako niečo vyprodukovať a poskladať dokopy rýchlo a lacno. Momentálne je prefabrikácia v Rakúsku, ktorá sa týka aj drevostavieb, na úrovni stredne veľkých firiem, ešte vôbec nie sme v priemysle, čo má súvis s dopytom, ktorý sa bude v blízkej budúcnosti stupňovať.
| Autori | Franz&Sue: Joseph Suntinger, Norbert Peller, Karin Hackl, Wolfgang Fischer, Carla Kuhn, Simon Frey, Caro Berger, Jonathan Hering |
| Lokalita | Viedeň |
| Prokjekcia | 2016 – 2017 |
| Realizácia | 2017 – 2018 |
| Stavebné náklady | 4,5 mil. € |
| Úžitková plocha | 3 150 m² |
| Hrubá podlažná plocha | 3 750m² |
Fotogaléria










