Táňa Kuva, Kristína Tomanová | text vyšiel v magazíne Koncept 1/2022
Vidor je ubytovacie zariadenie pre mladý pár a ich priateľov s možnosťou komerčného prenájmu ubytovacích jednotiek. Miesto lokalizované na východnom okraji štruktúry Spišského Hrhova ponúka magické výhľady na krajinu, ktorej dominuje neopakovateľná silueta najväčšieho hradu Slovenska.

Koncepcia architektonického riešenia sleduje analýzu pozemku, vyhodnotenie jeho potenciálu a morfológie. Princípom riešenia je zónovanie programu, jeho rozdelenie do dvoch samostatných hmôt, ktoré generujú vnútorný dvorový priestor. Do tohto priestoru budú expandovať aktivity a programy z oboch budov. Bude to miesto spoločenského diania a stretnutí.
Nástup do navrhovaného komplexu je vedený z juhozápadnej strany, mlatová cesta ústi do parkovacej plochy situovanej v severozápadnom cípe parcely. Každá hmota sa vyznačuje inou funkčnou náplňou, pričom fungujú vo vzájomnej synergii a vystupujú ako komplementárne entity.
Hmota bloku A je uložená rovnobežne s juhovýchodnou hranicou parcely vo vzdialenosti 3 m od nej. Jej funkčnú náplň predstavujú spoločenské priestory a zázemie. Na vstup do objektu, ktorý je situovaný na severnej strane, nadväzuje recepcia a hygienické zázemie. Dominantným priestorom, ktorý má väčšiu svetlú výšku a disponuje výhľadom do krajiny, je spoločenská miestnosť s barom, na ktorý nadväzuje kuchyňa. Keďže ide o zariadenie prechodného ubytovania s kapacitou do 10 osôb, sú priestory zázemia dimenzované ako naozaj funkčné minimum. Zo spoločenskej časti je možné expandovať dianie do nadväzujúceho nádvoria. Plochá strecha slúži ako terasa na rôzne podujatia.
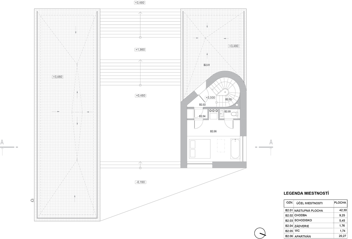
Hmota bloku B je kombináciou horizontálnej podnože prerastajúcej do vertikály ubytovacej „veže“. V podnoži je situovaný svojou rozlohou najväčší apartmán, ktorého hlavný benefit je kontakt s terénom. Ubytovacie jednotky nachádzajúce sa vo „veži“ sú sprístupnené samostatným vstupom s točitým schodiskom a s výmerou 25 m² sú navrhnuté pre dve osoby. Ich vybavenie je sparťanské, no disponujú výhľadom na krásnu panorámu. Ku každej jednotke prislúcha terasa sprístupnená sklápacími schodmi. Terasa sa nachádza nad každou z nich. V rámci každej jednotky sú prítomné fenomény vody a ohňa. Ide o rozmernú vaňu s výhľadom a krbové kachle, ktoré sú súčasne zdrojom tepla.


Architektonický výraz komplexu je založený na elementárnej geometrii. Kombinácia horizontály a vertikály dáva objektu ikonický vzhľad identifikovateľný v štruktúre sídla. Hmoty sú perforované opakujúcimi sa štvorcovými zaskleniami okien a prázdnymi štvorcovými otvormi na terasách. Okná v apartmánoch sú orientované na východ do údolia. Okno pri vani smeruje do lesného porastu na severe.
Terasy sa otvárajú na juh a východ. Výraz a vyznenie architektúry podporuje jednotná materialita. Obvodové steny sú zhotovené z pohľadového betónu s vloženými kusmi kameňa. Spodná časť stavby má väčšie zastúpenie kamenných blokov v betóne. Smerom hore sa kamenné bloky vytrácajú a prechádzajú do pohľadového betónu. Tento „gradient“ v rámci fasád, vizuálne odľahčovanie stavby po vertikále, nadväzuje na lokálnu tradíciu stavania stavieb s ťažkou kamennou podnožou(soklom), na ktorom je položená ľahšia drevená štruktúra stien a strechy. Tento princíp abstrahujeme a realizujeme ho v jednotnom materiáli. Pohľadový betón sa uplatňuje aj v interiéri (steny a stropy), tam však vstupuje do dialógu s kvalitným masívnym drevom podláh. Špeciálnu pozornosť budeme venovať návrhu interiéru jednotlivých apartmánov a ich vizuálnej diverzifikácii.
V čom je pre vás tento nepostavený šuflíkový projekt výnimočný?
Dlho sme snívali o možnosti navrhnúť obytnú vežu a zrazu tu bola možnosť pracovať na kompozícii horizontály a vertikály, reagujúc na okolie, kontext, krásnu krajinu a potreby zadávateľa.
Prečo sa nerealizoval?
Prišiel covid, ekonomické turbulencie, nárast cien stavebných materiálov a aj zadávatelia zrejme našli iné priority.
Zmenili by ste na ňom niečo, ak by sa teraz opätovne naštartoval?
Vôbec nič.
| Autori zerozero | Irakli Eristavi, Juraj Červený, Pavol Šilla, Ondrej Jurčo |
| Lokalita | Spišský Hrhov |
| Štúdia | 2019 |
| Projekt pre územné rozhodnutie | 2019 |
| Projekt pre stavebné povolenie | 2020 |
| Stavba povolená | 2020 |
Fotogaléria









