Tomáš Boroš | text vyšiel v magazíne Koncept 1/2022
Tomáš Boroš, jeden zo zakladateľov košického štúdia Doxa, je známy svojimi ilustráciami a sebe vlastnou poetickou estetikou. Pri rekonštrukcii 3-izbového bytu v panelovom dome sa vyrovnáva nielen so samotnou témou podstaty panelu, ale pridáva nové, pre panelák (zatiaľ) netradičné témy. Absolútne otvorený priestor postupne vrství okolo jediného pevného bodu v byte, technického jadra, pohyb po byte je moderovaný radiálne okolo translucentného boxu, ktorý prechodom svetla a používaním denne pretvára priestor bytu . Realizácia je príkladom progresu filozofie a adaptácie bývania v panelových domoch u nastupujúcej generácie. Tomáš píše o procese transformácie životného priestoru pre seba a svoju mladú rodinu.
Rekonštrukcia bytu T08b
Na začiatku bola túžba mladého manželského páru po vlastnom bývaní a ochota naštudovať si princípy fungovania košických sídlisk aj typy panelákových systémov v nich.
Po preskúmaní bola voľba jasná: trojizbový byt (ideálne na štítovej stene) v systéme T08b na sídlisku Nad jazerom, umiestnený do 4. NP pre vnímanie ulice. Stavebný systém bez nosných stien uprostred ponúka veľkú variabilitu dispozície a dlhú priebežnú lodžiu s nenosnými výplňovými panelmi po obvode bytového domu.
Sídlisko bolo vybudované na princípoch líniového mesta. Bývanie je tu obklopené rekreáciou a službami tak, že na ceste do miestnej školy, škôlky, potravín či krčmy obyvatelia nepretnú žiadnu frekventovanú cestu. Aj vďaka tomu ponúka ideálne prostredie pre mladú rodinu s deťmi. Sídlisko stojí za novodobými mestskými hradbami (mestským obchvatom) a funguje nezávisle od mestského centra. Jeho obyvatelia s obľubou využívajú miestne služby a komunitný život tu funguje prirodzene lepšie ako v centrálnych častiach mesta.
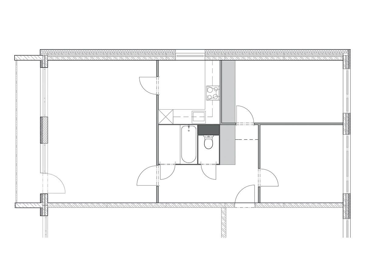
Návrh bytu sa snažil citlivo reagovať na daný stavebný systém a jeho panelovú identitu, ale aj využiť jeho potenciál a korigovať nedostatky. Ústrednou myšlienkou rekonštrukcie sa stalo centrálne násobenie stien. Odstránenie všetkých vnútorných priečok ponúklo dostatok priestoru pre toto nové vnútorné usporiadanie.


Prvou radiálou sa stali steny okolo vertikálnych rozvodov TZB uprostred bytu. Tie boli obalené štyrmi murovanými stenami a obložené čiernou lesklou spekanou dlažbou. Ide o jediné murované steny v byte. Všetka sanita sa následne umiestnila okolo tohto murovaného jadra. Umývadlo, sprchová ružica, toaleta aj vaňa. Ďalším násobením tejto steny oddeľujeme kúpeľňu od zvyšku bytu.
Na túto stenu sa kládli vysoké nároky a jej stvárnenie bolo pre nás skutočnou výzvou. Mala prepustiť dostatok svetla do kúpeľne v strede dispozície, oddeliť ju od zvyšku bytu vizuálne aj akusticky, no zároveň sa mala stať aj hlavným úložným priestorom bytu. Vznikla tak stena, ktorú zo strany kúpeľne tvorí copilit a z vonkajšej strany 650 mm hlboký úložný priestor.
Systém políc kotvených na napnutých závitových tyčiach reaguje na potreby jednotlivých funkčných zón a prirodzene plynie cez všetky miestnosti bytu. V obývacej izbe je knižnicou a písacím stolom, v kuchyni samotnou linkou a v spálni tvorí šatníky. Posledné násobenie steny sme nemuseli stavať, bolo vybudované pred 53 rokmi, len sme ho upravili do pôvodného stavu pred omietnutím. V rovnakom radiálnom systéme boli realizované aj všetky ďalšie inštalácie a rozvody (VZT, osvetlenie).
Materialita
Pri materiálovom riešení sme uvažovali nad prirodzenosťou a pravdivosťou panelových stavebných systémov. Podlahou sme sa snažili odkazovať na pôvodné linoleum, no v súčasnejšej podobe. Pod linoleum sme umiestnili dve vrstvy kročajovej izolácie vo forme kartónových dosiek naplnených jemným pieskom.


Policový systém tvorí čierna oceľ s pôvodnou patinou, 510 m nerezových závitových tyčí a morená brezová preglejka. Kuchynská linka a police, na ktoré boli kladené vyššie nároky, sú z balotinovanej nereze. Obvodové steny boli očistené až na betón a všetky pôvodné výrobné nápisy na paneloch, ako napríklad nivelizačné čiary či odkazy robotníkov, boli zachované.
Pohyb
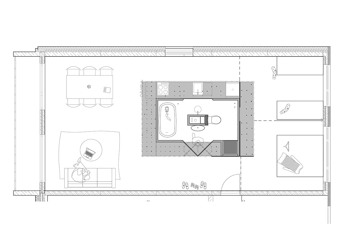
Usporiadanie bytu ponúka jasný radiálny komunikačný systém, ktorý milujú hlavne deti. Naháňať sa donekonečna okolo centrálneho objektu len tak neomrzí. Podobný radiálny systém funguje aj v kúpeľni. Vytvára každodenný očistný rituál – WC, sprcha/vaňa, umývadlo.

Naprieč tomuto radiálnemu systému je umiestnený druhý typ pohybu v byte – priečny. Tvoria ho dva špeciálne vstupy. Jeden do samotného bytu a ten druhý do kúpeľne. Kým pri vstupe do bytu ide o ničím zaujímavé bezpečnostné dvere, vstup do kúpeľne je tvorený dvojicou pivotových panelov navzájom spojených pomocou štyroch ozubených kolies v stropnej časti. Tento vstup jasne indikuje, či sa niekto v kúpeľni nachádza alebo nie. V momente, keď je kúpeľňa prázdna, vytvára poloha panelov pomyselnú pôdorysnú šípku a pozýva na vstup. V tomto stave sa cez dvere kúpeľňa prirodzene prevetráva. V momente, keď človek vstúpi, panely sa okolo neho obtočia a on sa ocitne pred obrovským zrkadlom. Kúpeľňa sa vtedy úplne oddelí od zvyšku bytu. Tento nevšedný vstup mal vhodným spôsobom predeliť dva úplne odlišné svety – svet bytu a svet kúpeľne.
Tvoja stena vyzerá ako tvoj život
Stena obiehajúca okolo kúpeľne je z vonkajšej strany plná vecí. Sú to veci, ktoré používame každý deň. Nie sú ničím prikryté, sú také, aké sú. Svetlo preniká do kúpeľne pomedzi ne a ich vonkajšie siluety sa presvecujú vo forme tieňov. Táto stena uprostred bytu vyzerá tak, ako vyzerajú veci, ktoré používame. Vyzerá tak, ako vyzerá náš svet.


Knihy, ktoré čítame, potraviny, ktoré jeme, šaty, ktoré si obliekame, topánky, ktoré nosíme – to všetko vytvára mozaiku plnú farieb a tvarov, textúr a materiálov a definuje finálnu podobu interiéru. Naša stena sa mení spolu s nami tak, ako rastieme, meníme svoje návyky a správanie. Jednoduchým používaním, vyberaním a vkladaním tých najzákladnejších vecí pretvárame interiér každý deň.
Fotogaléria










