Kristína Tomanová | text vyšiel v magazíne Koncept 1/2022
Mladé architektonické duo Kilo/Honč charakterizuje odvážna, na prvý pohľad experimentálna tvorba. Matej Honč a Richard Kilo v rozhovore s Kristínou Tomanovou vysvetľujú svoj prístup k adaptácii nielen panelákových bytov. Nezaoberajú sa vizuálne príťažlivým stvárnením priestorov, podstatné je premýšľanie nad filozofiou bývania a dynamika vzťahov v nich. V tvorbe hľadajú nové prepojenia, pracujú s prvkom nepohodlia ako architektonickým prostriedkom na „zvedomenie“ seba samého v architektúre a priestoroch interiéru. Ako demonštrácia princípov poslúžil projekt rekonštrukcie Matejovho vlastného bytu v panelovom dome.
Vo vašej poslednej realizácii s názvom projekt Panelák riešite aj otázku udržateľnej adaptácie panelových bytov. Napriek obrovskému bytovému fondu panelákov je podobných realizácií na Slovensku zatiaľ veľmi málo. Koľko takýchto projektov ste doteraz mali možnosť riešiť vy?
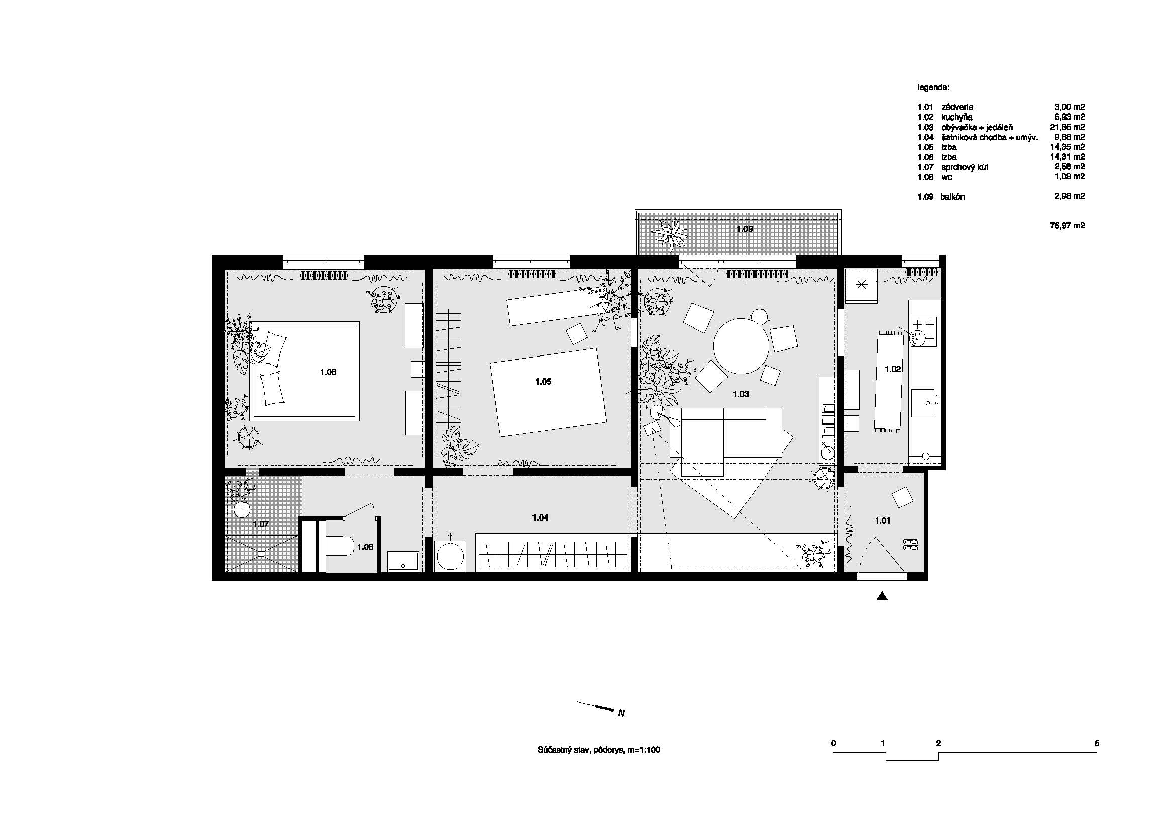
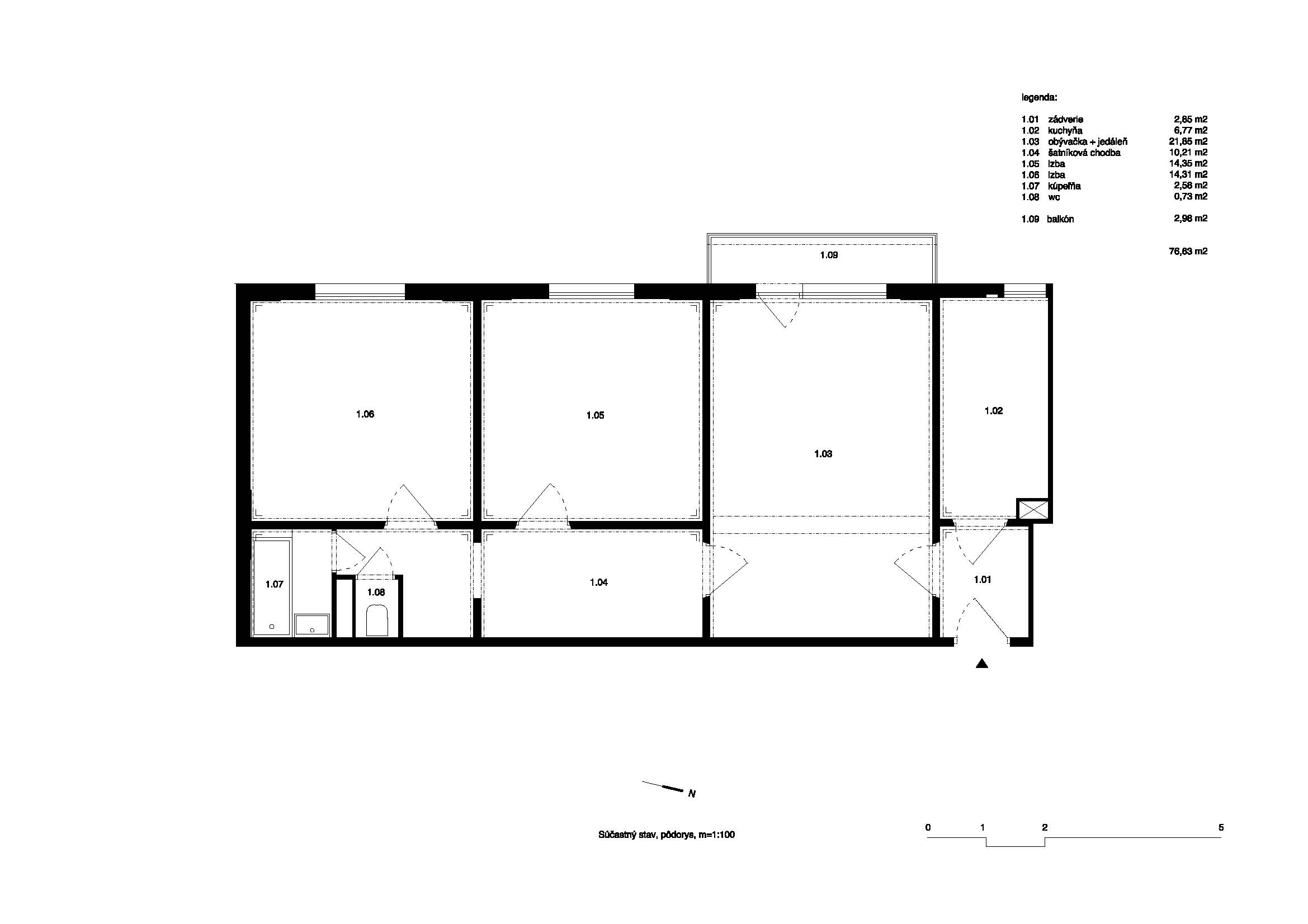
Matej: Dodnes sme v panelových domoch realizovali a realizujeme spolu tri projekty. Jeden v Petržalke a dva v Ružinove, kde jeden z nich aktuálne dokončujeme. Projekt Panelák je v dome s kombinovaným konštrukčným systémom železobetónových panelov 3,9 × 3,9 m kladených v oboch smeroch. Druhý dom má viditeľný predsadený raster na fasáde – je v sústave LBMB.
Aké sú podľa vás hlavné dôvody, pre ktoré si dnes ľudia vyberajú bývanie v panelovom dome?
Matej: Z mojej skúsenosti si byty v panelákoch ľudia kúpia zväčša z finančných dôvodov alebo pre lokalitu. Ja bývam vo štvrti Trávniky, čo je momentálne veľmi žiadaná lokalita. Má skvelú vybavenosť a dostupnosť do mesta. Pravidelne vyhadzujem zo schránky množstvo inzerátov záujemcov o kúpu, čo sa prejavuje aj na cenách. Žiaľ, dispozície v týchto domoch sú pre dnešné fungovanie mladej rodiny často úplne neprispôsobivé.
Ako ste pristupovali k rekonštrukcii bytu v projekte Panelák, v ktorom jeden z vás býva? V čom bol tento projekt špecifický?
Matej: Je to byt po mojich starých rodičoch. Babička mi spomínala, že keď varila, bola od obývačky oddelená dvomi dverami a zádverím. Kuchyňa bola iba technickým zázemím bytu, nie súčasťou obytnej zóny – koncept bývania „nuclear family“, keď žena varila a starala sa o domácnosť. Dnes chcú byť rodiny spolu, preto tieto dispozície nefungujú.
Byt bol veľmi štruktúrovaný, 3-izbový s ôsmimi dverami mimo vstupných. Rigidné členenie miestností sme sa snažili narušiť, preto všetky dvere okrem tých na WC išli preč. Miestnosti sme zoradili tak, aby sa funkcie jemne premiešavali. Dennú časť, ktorá tvorila iba 40 % bytu, sme sa pokúsili dostať čo najďalej do nočnej, a to vizuálne aj funkčne pomocou rôznych perforácií či prakticky preplávajúcim mobiliárom. Pridali sme druhú komunikačnú os otvormi v stenách dennej zóny. Snažili sme sa nájsť balans medzi otvorenosťou, adaptáciou na súčasné potreby a financiami.
V našej tvorbe sa vždy snažíme pracovať s priestorom, jeho hĺbkou, priehľadmi, tektonikou, vzduchom a svetlom. To sme sa snažili adaptovať aj v tomto projekte, len sme museli použiť iné prostriedky. Je náročnejšie upravovať dispozíciu panelového domu než napríklad tehlovému domu, kde môžeme všetky priečky odstrániť a začať nanovo.
Richard: Samozrejme, pôvodná členitosť môže niekomu vyhovovať aj v súčasnosti. Otázne je, či to tak naozaj chce alebo len nepozná iné riešenie. Priestor sme chceli spraviť fluidnejší a účelným použitím malého množstva materiálov sme podporili zlievanie povrchov. Perforácie pocitovo otvárajú priestor a obyvateľ je nútený ho nielen vnímať, ale aj prirodzene používať vo väčšej celistvosti. Radi tvoríme kontinuálny priestor, teda taký, ktorý nemá jasný začiatok a koniec.


Vo svojich návrhoch často prepájate priestory, pracujete s perforáciou, pridávate prvok okna alebo dverného otvoru s vysokým prahom…
Richard: V panelových bytoch robíme z dôvodu konštrukčného systému často otvory s pätníkmi, zároveň nám však neprekáža niečo prekračovať. Robíme to cielene a radi.
Matej: Otvory sú aj kompozičný aj tektonický prvok, ktorý pri rôznych šírkach definuje mieru prepojenia priestorov. Ich veľkosťou eliminujeme použitie spevňovacích oceľových prvkov, vďaka čomu je toto riešenie ekonomicky výhodnejšie. Ďalší problém, ktorý nám odpadáva ponechaním prahu, sú rôzne výšky podláh po vybúraní priečok.
V krajine máme tisíce a tisíce panelových bytov, takže naša generácia musí pochopiť, že sa s nimi niečo dá robiť. Že život v panelových domoch môže byť v niektorých ohľadoch aj lepší ako v novostavbách, ktoré bývajú v súčasnosti zosekané na ekonomické minimum.
Dokážeme uniformitu panelových bytov prispôsobiť súčasným individualizovaným podmienkam na život?
Matej: V krajine máme tisíce a tisíce panelových bytov, takže naša generácia musí pochopiť, že sa s nimi niečo dá robiť. Že život v panelových domoch môže byť v niektorých ohľadoch aj lepší ako v novostavbách, ktoré bývajú v súčasnosti zosekané na ekonomické minimum. Výmera panelového bytu nie je natoľko minimalizovaná, čo nám dáva priestor vymyslieť fungujúce riešenia. Novostavby sú niekedy dokonca limitujúcejšie ako paneláky. V nových bytovkách je síce denná časť spojená, ale často sú dispozície nezmyselné a neupraviteľné, ak je to napríklad byt so stropným chladením.
Je pre nás dôležité ukázať, že panelákový byt sa dá upraviť tak, aby ho mladá rodina dokázala zdravo obývať.
Richard: Vizuálna stránka je však iná vec. Nemusia všetky byty vyzerať ako naše projekty. Rozumieme, že takýto vizuál nie je pre každého. Ide skôr o priestorovú rovinu.
Interiéry neriešite iba po vizuálnej alebo priestorovej stránke, vo svojich návrhoch sa zaoberáte aj filozofiou bývania.
Matej: Myslíme si, že nie je zdravé, aby rodina prišla domov, žena sa zavrela do kuchyne, muž si pustil telku a deti sa zavreli do izby. Toto nie je to, čo naša generácia očakáva, keď si zakladá rodinu. Často diskutujeme o miere intimity potrebnej na bývanie. Raz sa nás niekto spýtal, ako sa naši klienti hádajú, keď za sebou nemôžu tresnúť dverami. Ak predsa chceme problém vyriešiť, musíme komunikovať. V interiéroch používame na priestorové vymedzenie sa záves, ak to človek v danej chvíli potrebuje.
Richard: Nie je to terapeutický počin, jednoducho chceme robiť priestory tak, aby sme boli spolu a uvedomovali si spôsob komunikácie, fungovania a používania životného priestoru. Aby sme si zvedomili seba v priestore a nefungovali podľa naučených zvykov. Práve tie sa snažíme vo svojich priestoroch narušiť.
Veľa hovoríte o miere intimity, ako fungujete vy? Máte vo svojich bytoch dvere?
Richard: Už máme, ale máme ich stále otvorené. Pri malom dieťati stále potrebujeme kontakt s celým priestorom, takže sa používajú iba pri návštevách.
Matej: Máme dvere na WC, ale ani tie väčšinou nepoužívame. Len je dobré mať tú možnosť. Keď si pozrieme príklady z Japonska, v referenčných projektoch je niekedy WC oddelené iba paravánom, pretože sú zvyknutí na úplne inú mieru súkromia. Nevravím, že to máme aplikovať aj u nás, ale myslím si, že každé smerovanie alebo vývoj musí mať svoj vrchol a vtedy si ako spoločnosť uvedomíme, že sme niečo „prepálili“ a musíme sa vrátiť. S tým súvisia aj všetky naše riešenia.
Momentálne sa veľa zakladá na tom, aby nielen interiér, ale veci všeobecne boli pekné a dokonalé. Toto vypúšťame. My sa snažíme riešiť architektúru a na klientoch nechať zabývanie sa.
Váš vizuálny jazyk je veľmi špecifický a rozpoznateľný, niekomu sa môže zdať až repetitívny.
Richard: Momentálne sa veľa zakladá na tom, aby nielen interiér, ale veci všeobecne boli pekné a dokonalé. Toto vypúšťame. My sa snažíme riešiť architektúru a na klientoch nechať zabývanie sa. Máme, samozrejme, náš vizuálny prejav, ale sústredíme sa hlavne na to, aby sme vizualitou podčiarkli priestorovosť a zvedomenie celého bytu. Nie je to módna záležitosť, ale výsledok nášho uvažovania.
Matej: Veľmi dôležité je pochopiť, že robíme disciplínu, na ktorú sa nepozeráme zvnútra, ale zvonka. To znamená, že keď robíme interiér, nepozeráme sa na naň ako na interiér, ale ako na architektúru. Máme obmedzený priestor, ktorý je síce vnútorný, ale vzťahy, ktoré sa snažíme vytvárať a definovať, sú pre nás architektúrou, urbanizmom. Mestské prvky ako ulica, korzo či námestie, ktoré sú charakterovo odlišné, sa snažíme preniesť a aplikovať do interiéru. Naše projekty sú asi aj preto trochu kontroverzné.
Nedávno sme boli na návšteve u klienta, ktorý má dom spred 20. rokov, kde boli jasne čitateľné postmoderné prvky, no zhodli sme sa, že tam bolo množstvo kvalitných priestorových riešení a bolo viditeľné, že pri tvorbe domu sa architekt zamýšľal nad fungovaním priestoru. Napriek prvkom, ktoré vyšli z módy, to bola kvalitná architektúra.
V súčasnosti vás už vyhľadávajú klienti na základe predchádzajúcej tvorby. Bolo na začiatku ťažšie presadiť tieto princípy?
Richard: Náš prístup sa menil z projektu na projekt, keď sme si postupne uvedomovali, že nechceme dizajnovať. Náš proces je o dlhých diskusiách o fungovaní a princípoch. Na začiatku vždy s klientom do hĺbky preberáme jeho predstavy, spôsob života, spolu navštívime priestor…. Následne mu po približne mesiaci odovzdáme kompletnú štúdiu, ktorú klient buď príjme, alebo ju prerábame. Žiadne konzultácie medzitým. Tento prístup sa nám veľmi osvedčil, väčšina ľudí totižto nevie čítať pôdorysné skice. Klienti návrhu lepšie porozumejú a zväčša navrhujú len malé zmeny, ktoré však nie sú principiálne.
Matej: Rišov byt (pozn. red. projekt Svätoplukova) začal kontinualitu tohto rozmýšľania a potom to eskalovalo v ďalších projektoch. Dnes už nám tento projekt pripadá konzervatívny.
Máte túžbu rekonštruovať celý panelový dom?
Matej: Áno, čo mám podpísať? (smiech). Panelové domy z môjho pohľadu poskytujú v istých ohľadoch väčšiu flexibilitu ako nové domy, kde sú prísne definované rozmery všetkých miestností a spoločné priestory eliminované na minimum. Iba pár štvorcových metrov navyše v panelovom byte otvára iné možnosti.
Projekt Panelák bol nedávno publikovaný na portáli archinfo.sk. V diskusii pod článkom vidieť, že váš prístup vyvoláva rôzne reakcie.
Richard: Tá diskusia bola výživná! Sme radi, že vznikajú také diskusie. Druhá vec je slušnosť, ale my to vieme filtrovať.
Matej: Taká diskusia vzniká pod každým naším projektom. Od projektu Svätoplukova máme pravidelných prispievateľov – „obdivovateľov“. Dokonca sme pre týchto ľudí akousi mernou jednotkou architektúry, ktorú považujú za zlú. Napríklad kaviareň Výklad od ateliéru Grau získala v diskusii 30 a projekt Panelák 45 Kilohončov, takže vyhrávame.
Fotogaléria






